Пн.-Пт.: 9:00 - 19:00
Сб.: по предварительной договоренности
Вс.: Выходной

Дом

65 154.40 BYN
23 000.00$ 960.97 BYN/м2 339.23$/м2

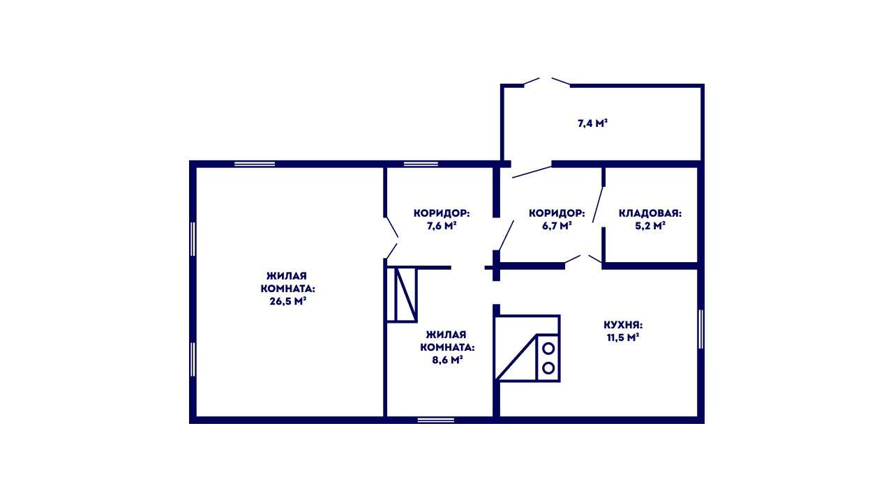
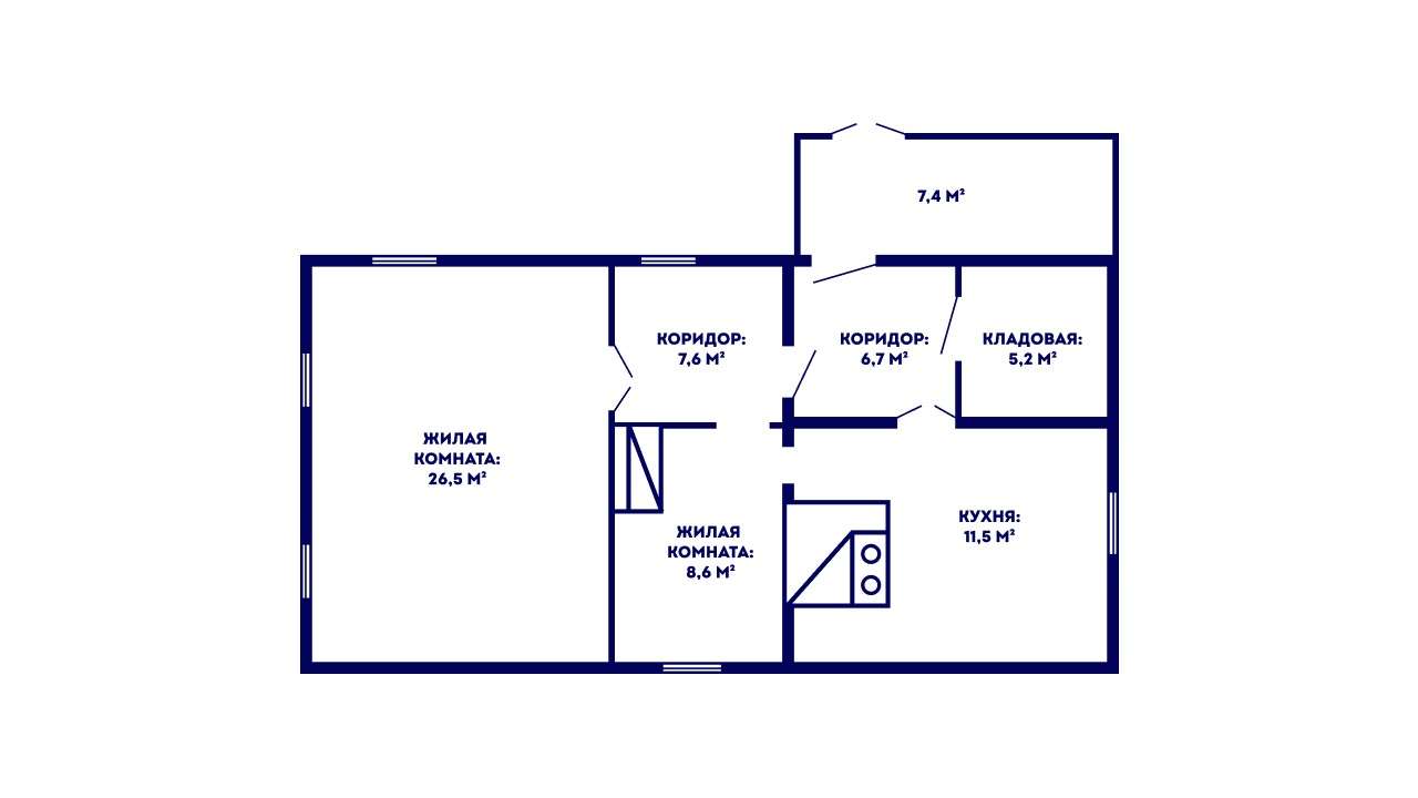
Продается жилой дом в г. Скидель, ул. Луговая. Общая площадь 67,8 кв.м, жилая - 44,9 кв.м, кухня - 11,5 кв.м. В дом проведен газ, канализация местная, отопление газовое, но есть рабочая печь. Имеются хозяйственные постройки. Документы в порядке. Торг.

 

Дочернее республиканское унитарное предприятие «Гродненское агентство по оказанию риэлтерских услуг», УНП 590646129, лицензия Министерства юстиции Республики Беларусь N 02240/424 от 08.02.2023.

Шило Лидия Александровна
Шило Лидия Александровна
Ваш специалист
Пн.-Пт.: 9:00 - 19:00
Сб.: по предварительной договоренности
Вс.: Выходной
Область
Гродненская область
Район области
Гродненский
Участок, с
16
Площадь(О/Ж/К)
67.80/44.90/11.50
Количество уровней
1
Количество комнат
2
Материалы дома
Дерево
Крыша
Другое
Отопление
Газовое
Газоснабжение
Центральное
Водоснабжение
Есть
Канализация
Местная
Номер и дата договора
44/1 от 06-05-2024
Похожие предложения
Image
квартира 3 комнатная квартира Скидель, Шеремета, 2
Комнат 3
Площадь (О/Ж/К) 57.90/40.40/7.30
Этаж/этажей 2/2
Год постройки 0
73 652.80 BYN
26000 $
Подробнее
Оставьте заявку

на покупку -продажу- мену- оформление недвижимости

Ваше имя *
Ваш номер телефона *
Ваш e-mail
Комментарий